Проекты и Цены
Технологии
Услуги
О компании
Главная
Проекты
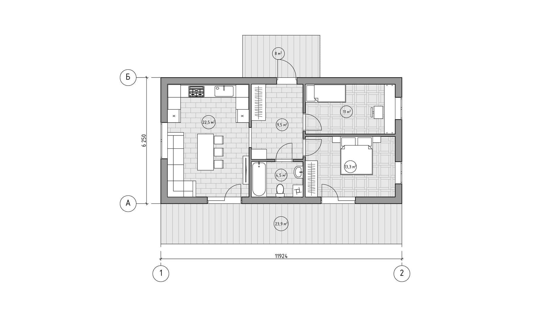
Проект Дом "Бунгало" - Строй Дом Архитектура (Калининград)
Проект Дом "Бунгало" - Строй Дом Архитектура (Калининград)
характеристики
Параметры проекта
Общая площадь, м2
92,7
Состав дома
Терраса
получить проект
Похожие проекты
подробнее
Дом "Бунгало"
Площадь:
92,7 м
2
подробнее
Дом "Народный"
Площадь:
87,8 м
2
Цена от:
6 000 000 руб. ₽
подробнее
Дом "Бунгало мини"
Площадь:
83 м
2
подробнее
Дом "Барнхаус"
Площадь:
147,5 м
2
Цена от:
6500000 ₽
все проекты
Заказать строительство дома по данной технологии